Việc chuẩn bị bản vẽ xin phép xây dựng nhà trọ là bước quan trọng đầu tiên trong quá trình thi công hợp pháp theo đúng quy định pháp luật. Theo các cập nhật mới nhất từ cơ quan chức năng, hồ sơ bản vẽ cần tuân thủ đầy đủ các tiêu chuẩn về kiến trúc, kết cấu, cấp thoát nước, điện, phòng cháy chữa cháy và quy hoạch khu vực. Bài viết dưới đây, 618 Architects sẽ cung cấp thông tin giúp bạn triển khai công trình suôn sẻ.
Bản Vẽ Xin Phép Xây Dựng Nhà Trọ Gồm Những Gì?
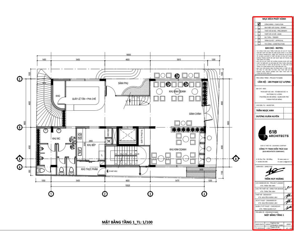
Chuẩn bị bản vẽ xin phép xây dựng nhà trọ là bước quan trọng giúp hồ sơ của bạn được xét duyệt nhanh chóng, tránh bị trả về nhiều lần. Vậy một bản vẽ xin phép hoàn chỉnh cần có những phần nào? Dưới đây là những nội dung bắt buộc và những lưu ý bạn cần nắm rõ.
Ý tưởng thiết kế ban đầu và tư vấn bố trí phù hợp quy định
Trước khi lập bản vẽ, chủ đầu tư cần xác định rõ nhu cầu xây dựng (số tầng, số phòng trọ, công năng từng tầng…). Sau đó, làm việc với đơn vị tư vấn có chuyên môn để điều chỉnh bản vẽ sao cho phù hợp với quy định mật độ xây dựng của quận và tối ưu diện tích sử dụng.
►► Đừng bỏ qua: Quy định về mật độ xây dựng tại Đà Nẵng 2025 chính xác nhất
Mặt bằng tổng thể và mặt bằng sơ bộ
►► Đừng bỏ qua: Quy định về mật độ xây dựng tại Đà Nẵng 2025 chính xác nhất
Mặt bằng tổng thể và mặt bằng sơ bộ
- Mặt bằng tổng thể: Thể hiện mối tương quan giữa diện tích xây dựng với tổng diện tích đất. Cần tuân thủ mật độ xây dựng được cơ quan địa phương quy định.

- Mặt bằng sơ bộ: Bao gồm bản vẽ chi tiết từ tầng trệt đến tầng mái. Mỗi mặt bằng phải thể hiện rõ bố trí phòng, khu vệ sinh, hành lang, cầu thang,...
Mặt cắt công trình và phần móng
Bản vẽ mặt cắt (thường là mặt cắt AA) giúp thể hiện cấu trúc chiều sâu ngôi nhà, bao gồm:
- Kết cấu móng
- Hầm tự hoại (nếu có)
- Chiều cao tầng, độ dốc mái,...
Mặt đứng công trình
Phần này thể hiện mặt tiền ngôi nhà trọ, bao gồm:
- Hình dạng mặt tiền
- Kích thước tổng thể và từng tầng
- Kiến trúc mái, lan can, cửa sổ,…
Bản đồ tọa độ vị trí khu đất
Bản đồ thể hiện tọa độ khu đất dựa theo Giấy chứng nhận quyền sử dụng đất. Nếu sổ đỏ không có tọa độ, cần bổ sung bản đồ hiện trạng.
Khung tên bản vẽ xin phép xây dựng
Khung tên phải bao gồm đầy đủ:
- Tên và thông tin đơn vị tư vấn thiết kế
- Chữ ký của kiến trúc sư có chứng chỉ hành nghề
Chữ ký chủ đầu tư (nếu là đồng sở hữu, cần cả hai chữ ký)

Khu vực dành cho phê duyệt của cơ quan có thẩm quyền
Một khoảng trống trên bản vẽ cần để UBND phường/quận ký duyệt, đóng dấu xác nhận bản vẽ đúng chuẩn pháp lý.
Thể hiện mật độ, quy mô và chiều cao xây dựng
Trong bản vẽ xin phép xây dựng nhà trọ, bắt buộc thể hiện:
- Mật độ xây dựng: Tỷ lệ phần đất được xây dựng và phần chừa lại theo quy định địa phương.
- Quy mô xây dựng: Số tầng, diện tích từng tầng.
- Chiều cao công trình: Phụ thuộc vào lộ giới, khu vực (nội thành hay ngoại ô).
Ví dụ: Nếu lộ giới đường 3.5m ≤ L < 7m, chiều cao tối đa đến sàn lầu 1 là 5.8m, đến sàn tầng 3 là 13.6m.
Quy định về cửa sổ, ban công, và lỗ thông hơi
Đây là phần nhiều người bỏ sót nhưng lại quan trọng để tránh tranh chấp:
- Không được mở cửa đi, cửa sổ trên các bức tường cách ranh giới đất < 2m nếu không có thỏa thuận.
- Ban công hướng sang nhà bên cạnh phải cách ranh ít nhất 2m.
- Nếu có nhu cầu mở, cần văn bản thỏa thuận có xác nhận của UBND phường.
Quy định về khổ giấy bản vẽ xin phép xây dựng
Không bắt buộc theo một kích thước cụ thể, nhưng bản vẽ cần đầy đủ nội dung theo yêu cầu, rõ ràng, dễ đọc và thuận tiện cho phê duyệt.
Một bản vẽ xin phép xây dựng nhà trọ đúng chuẩn không chỉ giúp bạn tiết kiệm thời gian mà còn đảm bảo công trình được xây dựng hợp pháp, an toàn và phù hợp với quy hoạch đô thị. Hãy làm việc với đơn vị thiết kế uy tín để tránh sai sót đáng tiếc.
Xin Giấy Phép Xây Dựng Nhà Ở Kết Hợp Thuê Trọ
Trong bối cảnh nhu cầu cho thuê nhà trọ ngày càng tăng, nhiều chủ đầu tư lựa chọn xây dựng nhà ở kết hợp cho thuê trọ để tối ưu công năng sử dụng và sinh lời hiệu quả. Tuy nhiên, việc xin giấy phép xây dựng nhà ở kết hợp thuê trọ cần tuân thủ những quy định riêng về mục đích sử dụng đất, mật độ xây dựng và tiêu chuẩn an toàn.
Xin giấy phép xây dựng nhà trọ cần giấy tờ gì?
Để xin giấy phép xây dựng nhà trọ, bạn cần chuẩn bị hồ sơ đầy đủ các giấy tờ bao gồm:
- Sổ đỏ công chứng (Có thời hạn < 6 tháng)
- Đơn đề nghị XPXD
- Đơn cam kết đảm bảo an toàn công trình liền kề
- Bản vẽ XPXD do đơn vị tư vấn thiết kế lập gồm:
+ 2 Bộ bản vẽ đóng dấu (A4)
+ 1 Bộ chứng chỉ năng lực công ty
►► Xem thêm: Chi tiết giấy tờ xin phép xây dựng nhà trọ
►► Xem thêm: Chi tiết giấy tờ xin phép xây dựng nhà trọ
Khác biệt khi xin phép xây dựng nhà trọ thương mại và nhà ở cá nhân
Việc xin phép xây dựng nhà trọ có sự khác biệt rõ ràng giữa hai mục đích:
1. Nhà ở kết hợp cho thuê (hộ gia đình):
- Mục đích chính là sinh hoạt, kết hợp một phần diện tích để cho thuê trọ nhỏ lẻ.
- Hồ sơ, thủ tục xin phép đơn giản hơn, được cấp phép như nhà ở riêng lẻ.
-
Không bắt buộc phải xin giấy phép đầu tư hay chứng minh nguồn vốn.

2. Nhà trọ thương mại (dự án kinh doanh cho thuê):
- Chủ đầu tư phải đăng ký kinh doanh dịch vụ lưu trú hoặc đầu tư bất động sản.
- Quy mô lớn, nhiều tầng, số lượng phòng lớn cần phải thẩm định PCCC, môi trường, giao thông,...
- Yêu cầu hồ sơ pháp lý phức tạp hơn: có thể cần thêm giấy phép đầu tư, báo cáo đánh giá tác động môi trường (ĐTM), hồ sơ phòng cháy chữa cháy,…

Lưu ý quan trọng: Nếu bạn xây dựng quá số phòng, số tầng hoặc diện tích vượt quá quy mô cho phép của nhà ở dân dụng, có thể bị xem là kinh doanh không đúng pháp luật và bị xử phạt hành chính, buộc tháo dỡ phần sai phạm.
Đơn Vị Tư Vấn Xin Phép Xây Dựng Tại Đà Nẵng – 618 Architects
Nếu bạn đang cần xin giấy phép xây dựng nhà trọ hoặc nhà ở kết hợp cho thuê tại Đà Nẵng, việc tìm đúng đơn vị tư vấn thiết kế và pháp lý chuyên nghiệp sẽ giúp tiết kiệm đáng kể thời gian, chi phí và tránh rủi ro sai sót hồ sơ.
Dịch vụ trọn gói từ thiết kế đến hoàn công
618 Architects là một trong những đơn vị tư vấn xây dựng uy tín tại Đà Nẵng, cung cấp dịch vụ trọn gói từ A–Z:
- Khảo sát hiện trạng, tư vấn phương án mặt bằng phù hợp quy định
- Thiết kế bản vẽ xin phép xây dựng đúng chuẩn quận/huyện
- Chuẩn bị hồ sơ pháp lý xin phép xây dựng
- Hỗ trợ điều chỉnh bản vẽ khi có yêu cầu từ cơ quan chức năng
- Theo dõi quá trình thẩm định, phê duyệt hồ sơ đến khi ra giấy phép
Tất cả được triển khai đồng bộ, đảm bảo tiến độ nhanh và không phát sinh chi phí ngoài cam kết.
Cam kết pháp lý – Tối ưu thời gian và chi phí
- Hồ sơ được duyệt nhanh – đúng quy định địa phương
- Không phát sinh chi phí khi đã thống nhất hạng mục
- Tư vấn minh bạch – báo giá rõ ràng ngay từ đầu
Dù bạn là chủ nhà lần đầu xây dựng, nhà đầu tư xây trọ thương mại, hay đơn vị cần mở rộng nhà ở cho thuê, 618 Architects luôn đồng hành để đảm bảo hồ sơ xây dựng hợp pháp đúng tiêu chuẩn, đúng tiến độ.
Gọi ngay 08 77777 618 để được tư vấn bản vẽ và hồ sơ xin phép đúng chuẩn, nhanh chóng và tiết kiệm chi phí!
Tham khảo thêm:
Công ty TNHH Kiến trúc 618 || 618 Architects
Kiến trúc & Nội thất | Architecture & Interior Design
Phát triển thiết kế & tối ưu khôi tích | Design Development & Masing
Thi công - Giám sát - Thẩm định | Construction - Supervision - Verification
=======================
“Thức tỉnh cuộc sống" trong từng công trình
Địa chỉ: 94 Duy Tân, Hoà Cường, Đà Nẵng
Xưởng SX: La Bông 3, Hòa Vang, Đà Nẵng
Website: www.618.vn
Email: contact@618.vn
Hotline tư vấn: 08 77777 618
Hỗ trợ Kỹ thuật: 08 17777 618
Tư vấn cấp phép: 08 57777 618
Văn phòng: 023 66 5555 66