Trong bài toán đầu tư bất động sản dòng tiền, đặc biệt là phân khúc căn hộ dịch vụ và chung cư mini, diện tích hữu dụng chính là "chìa khoá". Thách thức đặt ra cho các chủ đầu tư (CĐT) không chỉ là chia nhỏ không gian để tăng số lượng phòng, mà là làm thế nào để trong một diện tích giới hạn (15m2 - 30m2), người thuê vẫn cảm thấy đẳng cấp, tiện nghi và sẵn sàng chi trả mức giá cao hơn thị trường 10-15%.
Bài viết dưới đây 618 Architects sẽ hướng dẫn chi tiết hơn làm như thế nào để thiết kế chung cư mini vừa tăng số lượng phòng vừa tối ưu công năng.
1. Tư duy đúng về "tiết kiệm diện tích" trong thiết kế chung cư mini
Nhiều CĐT hiểu sai rằng tiết kiệm diện tích đồng nghĩa với việc thu hẹp không gian sống, dẫn đến căn hộ chật chội và khó khai thác lâu dài. Thực tế, hai khái niệm này khác nhau hoàn toàn. Thu hẹp diện tích là cắt giảm bớt không gian sử dụng. Tiết kiệm diện tích là nghệ thuật loại bỏ "diện tích chết" để tăng "diện tích hữu dụng.
-
Một hành lang quá dài là diện tích chết.
-
Một góc phòng bị cột chiếm chỗ là sự lãng phí.
-
Một vách ngăn gạch dày 10cm chia cắt không gian là sự rào cản.
2. Tại sao thiết kế chung cư mini cần ưu tiên tiết kiệm diện tích?
Chung cư mini thường có diện tích nhỏ gọn, dao động phổ biến từ 15m² đến 50m². Nếu thiết kế không hợp lý, CĐT sẽ lãng phí đáng kể hệ số sử dụng đất, giảm số lượng căn hộ và kéo dài thời gian thu hồi vốn. Ngược lại, việc ưu tiên tiết kiệm diện tích một cách thông minh trong thiết kế chung cư mini sẽ mang lại nhiều lợi ích.
Tối ưu diện tích trong không gian nhỏ hẹp
Thiết kế thông minh tận dụng tối đa từng mét vuông qua bố trí đa năng (gác lửng, nội thất âm tường), giúp tăng diện tích sử dụng. Điều này cho phép CĐT bố trí đầy đủ công năng sinh hoạt (ngủ, ăn, làm việc) trong căn hộ nhỏ, tạo sản phẩm hấp dẫn, trực tiếp đẩy cao tỷ lệ lấp đầy và giá trị cho thuê.
Tạo không gian mở, hạn chế cảm giác chật hẹp
Sử dụng giải pháp như kính lớn đón ánh sáng tự nhiên, tường ngăn linh hoạt, màu sắc sáng và chiếu sáng phân tầng giúp căn hộ dù nhỏ vẫn mang cảm giác thoáng đãng, thoải mái.
Nâng cao tính thẩm bằng cách bố trí nội thất hợp lý
Thiết kế chung cư mini cần đặc biệt chú trọng tiết kiệm diện tích bởi quỹ không gian vốn hạn chế, nếu bố trí không hợp lý sẽ dễ tạo cảm giác chật chội và bí bách. Việc sắp xếp nội thất thông minh như sử dụng nội thất đa năng, tối giản chi tiết, đồng bộ màu sắc và tận dụng ánh sáng tự nhiên sẽ giúp không gian trở nên rộng rãi và có tính thẩm mỹ cao hơn. Nhờ đó, căn hộ không chỉ đáp ứng công năng sử dụng mà còn nâng cao giá trị khai thác, thu hút khách thuê và tăng sức cạnh tranh trên thị trường.
3. Giải pháp thiết kế chung cư mini đẹp mà tiết kiện diện tích
3.1. Tối ưu bố trí mặt bằng tổng thể và từng tầng
Trong thiết kế chung cư mini, việc lập mặt bằng từng tầng cần được tính toán chi tiết ngay từ giai đoạn đầu:
-
Giảm tối đa diện tích phần giao thông (hành lang, cầu thang) nhưng vẫn đảm bảo thoát hiểm theo quy chuẩn.
-
Tập trung tối ưu diện tích sử dụng thực tế cho các căn hộ.
-
Đảm bảo mặt bằng dễ phân chia, linh hoạt trong hoàn thiện và bố trí nội thất.
Phân tầng chức năng:
-
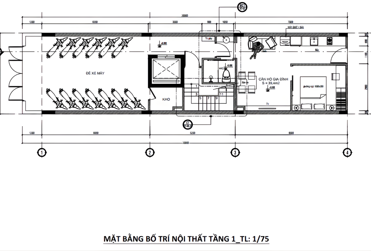
Tầng 1: Khu vực để xe, sảnh đón tiếp, phòng kỹ thuật.
-
Tầng điển hình: Bố trí 2-4 căn hộ khép kín tùy diện tích đất, ưu tiên hình khối vuông vức để giảm lãng phí.
-
Tầng tum hoặc tầng mái: Sắp xếp khu giặt phơi chung, sân thượng xanh
3.2. Tăng cường thông gió và ánh sáng tự nhiên
Một thiết kế chung cư mini đẹp và thoải mái không thể thiếu giải pháp đón ánh sáng, lưu thông không khí tự nhiên. Nếu bỏ qua yếu tố này, căn hộ dễ bị ẩm mốc, bí bức, dẫn đến khó khai thác lâu dài.
Mỗi căn hộ dịch vụ đều cần sở hữu ít nhất một cửa sổ lớn hoặc ban công riêng. Điều này không chỉ giúp không gian trông rộng hơn mà còn giúp CĐT tiết kiệm đáng kể chi phí điện năng vận hành cho tòa nhà.
3.3. Thiết kế căn hộ khép kín, tiện nghi và đa năng
Với mục đích khai thác cho thuê, mỗi căn hộ trong thiết kế chung cư mini cần được xem như một đơn vị độc lập, đáp ứng đầy đủ nhu cầu sinh hoạt cơ bản:
-
Trang bị khu bếp riêng biệt và nhà vệ sinh khép kín.
-
Đảm bảo không gian để bố trí giường, tủ quần áo, bàn làm việc và khu vực tiếp khách nhỏ.
-
Hệ thống điện, nước, internet được tách biệt r.
Thiết kế này giúp khách thuê cảm nhận được sự riêng tư và tiện nghi như ở nhà riêng, từ đó tăng tỷ lệ lấp đầy, giữ chân lâu dài và nâng cao giá trị cho thuê.
3.4. Tuyệt đối dảm bảo an toàn PCCC
An toàn luôn là ưu tiên hàng đầu trong mọi bản thiết kế chung cư mini. Nhiều chủ đầu tư mắc sai lầm khi chỉ tập trung tăng số lượng căn hộ mà bỏ qua các yêu cầu bắt buộc, dẫn đến rủi ro lớn về sau.
Thiết kế chung cư mini cần đảm bảo:
-
Lối thoát hiểm, thang bộ đạt tiêu chuẩn quy định.
-
Áp dụng hệ thống PCCC phù hợp với quy mô công trình (bình chữa cháy, vòi phun, báo cháy tự động).
-
Tuân thủ nghiêm ngặt các quy định về chiều cao xây dựng, mật độ, khoảng lùi và hệ số sử dụng đất.
>>> Không thể bỏ qua: Quy định PCCC cho nhà trọ, căn hộ 3 tầng, 4 tầng, 5 tầng, 7 tầng
4. Mẫu thiết kế chung cư mini đẹp và hiện đại
4.1. Mẫu thiết kế chung cư mini 5-7 tầng
Đây là loại hình thiết kế phổ biến ở các đô thị. Với quy mô 5-7 tầng, công trình vừa đảm bảo khả năng khai thác nhiều căn hộ, vừa phù hợp quy định xây dựng hiện hành.
Ưu điểm:
-
Tăng số lượng phòng cho thuê trên cùng một mặt bằng, giúp rút ngắn thời gian hoàn vốn đầu tư.
-
Phù hợp xây để bán và cho thuê
-
Dễ dàng triển khai hệ thống quản lý, từ PCCC đến an ninh.
>>> Khám phá ngay: Mẫu xây dựng căn hộ 7 tầng cho thuê thực tế tại Đà Nẵng
4.2. Mẫu thiết kế chung cư mini kết hợp ở và cho thuê
Mẫu này dành cho CĐT muốn tự khai thác một phần: tầng 1-2 làm shophouse hoặc căn hộ chủ nhà ở rộng rãi, các tầng trên là căn hộ cho thuê khép kín với tiện ích chung.
Ưu điểm:
-
CĐT có không gian sống riêng tư mà vẫn tối đa hóa nguồn thu từ cho thuê.
-
Linh hoạt vận hành, giảm rủi ro khi thị trường biến động.
-
Tăng giá trị dự án nhờ kết hợp thương mại - nhà ở, dễ bán lại hoặc thế chấp.
>>> Không thể bỏ qua: Căn hộ Nhà ở gia đình kết hợp dịch vụ lưu trú
4.3. Mẫu thiết kế chung cư mini gác lửng full tiện nghi
Mẫu thiết kế này là lựa chọn hàng đầu trong các thiết kế chung cư mini. Thiết kế thông minh với: tầng trệt bố trí phòng khách - bếp mở, tầng lửng làm phòng ngủ và khu làm việc, kết hợp ban công rộng và nội thất đa năng.
Ưu điểm vượt trội:
-
Nhân đôi diện tích thực dụng khi phân tách rõ rệt khu vực tiếp khách/bếp ở dưới và khu vực ngủ nghỉ riêng tư phía trên.
-
Giúp phân chia căn hộ khoa học, tạo chiều sâu và điểm nhấn độc đáo cho thiết kế nội thất, làm căn hộ trở nên ấn tượng hơn.
-
Giải pháp thông minh giúp tăng diện tích sử dụng với chi phí hợp lý.
5. Đơn vị thiết kế thi công chung cư mini chuyên nghiệp nhất Đà Nẵng
618 Architects tự hào là đơn vị tiên phong trong lĩnh vực thiết kế chung cư mini tại Đà Nẵng, mang đến giải pháp toàn diện giúp chủ đầu tư tối ưu hóa nguồn vốn và diện tích sử dụng. Chúng tôi hiểu rõ rằng mỗi lô đất đô thị là một tài sản quý giá, vì vậy mọi bản thiết kế chung cư mini đều được cá nhân hóa, tập trung vào giải pháp thông minh. Nhằm gia tăng số lượng căn hộ mà vẫn đảm bảo không gian sống và khai tác tối đa giá trị đầu tư.
Nếu bạn đang tìm kiếm giải pháp thiết kế chung cư mini đẹp, tối ưu công năng và đảm bảo hiệu quả đầu tư tại Đà Nẵng, hãy liên hệ ngay qua hotline 08 57777 618 để được tư vấn chi tiết nhé!
Câu hỏi thường gặp:
Xây chung cư mini 60m2 chi phí hết bao nhiêu?
Thi công chung cư mini trọn gói ở đâu uy tín?
(1).gif)

