Chiều cao tầng nhà theo phong thủy cho nhà cao tầng thường được xác định dựa trên tổ hợp nhiều yếu tố như tổng diện tích xây dựng, chức năng không gian và định hướng kiến trúc tổng thể. Thông thường, tầng một (hay tầng trệt) được thiết kế với độ cao vượt trội nhằm tạo cảm giác rộng mở và tăng cường lưu thông khí. Trong đó, khoảng cách tầng lầu theo phong thủy cũng cần được tính toán chính xác, hài hòa với điều kiện vi khí hậu và công năng từng khu vực, đảm bảo sự cân đối về mặt sinh khí, ánh sáng và thẩm mỹ không gian sống.
Sau đây, 618 Architects sẽ phân tích chi tiết giúp các nhà đầu tư có góc nhìn thực tiễn và ứng dụng hiệu quả thông qua bài viết đây.
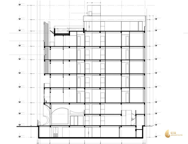
Các chỉ số chiều cao tầng nhà mang tính tham chiếu theo nguyên tắc phong thủy
Tầng trệt (tầng 1)
Theo nguyên tắc chiều cao tầng nhà theo phong thủy, tầng trệt cần được thiết kế với thông số phù hợp để tạo nền tảng vững chắc cho toàn bộ công trình.
- Đối với nhà ở hiện đại, chiều cao lý tưởng dao động từ 3.6 đến 3.9 mét, nhằm đảm bảo khả năng lưu thông không khí, tận dụng ánh sáng tự nhiên và tối ưu hóa trải nghiệm không gian sống.
►► Tham khảo thêm: 10 Nguyến tắc phong thủy nhà ở nên tránh trong năm 2025
- Trong kiến trúc tân cổ điển, chiều cao tầng trệt thường ở mức 3.9 mét, giúp định hình tỷ lệ cân đối, nâng cao yếu tố thẩm mỹ và tạo cảm quan sang trọng.
- Với biệt thự mang phong cách dinh thự, chiều cao khuyến nghị dao động từ 4.2 đến 4.5 mét, góp phần định hình không gian đẳng cấp và đạt chuẩn chiều cao trần nhà chuẩn phong thủy.
- Trường hợp có gác lửng, tầng trệt nên nâng lên 4.5 – 5 mét để đảm bảo khoảng cách tầng lầu theo phong thủy, đồng thời duy trì sự hài hòa về tỷ lệ kiến trúc và công năng sử dụng.
Chiều cao tầng trệt theo phong thủy cần được điều chỉnh phù hợp với từng phong cách kiến trúc
Các tầng lầu còn lại
- Đối với công trình hiện đại, các tầng phía trên thường được bố trí chiều cao 3.3 – 3.6 mét, phù hợp với công năng, đồng thời vẫn đảm bảo yếu tố cân đối trong cấu trúc tổng thể.
- Với nhà tân cổ điển, chiều cao tầng phổ biến ở mức 3.6 mét, riêng tầng áp mái có thể điều chỉnh xuống khoảng 3.3 mét để duy trì sự hài hòa.
- Biệt thự cao tầng thường duy trì chiều cao tầng trong khoảng 3.6 – 3.9 mét, vừa đảm bảo chiều cao trần nhà chuẩn phong thủy, vừa giữ vững khoảng cách tầng lầu theo phong thủy nhằm ổn định năng lượng khí lưu trong toàn bộ ngôi nhà.
.png)
Chiều cao lý tưởng cho từng không gian chức năng
Trong thiết kế nhà ở, việc xác định chiều cao tầng nhà theo phong thủy cần được cân nhắc linh hoạt theo từng khu vực chức năng nhằm đảm bảo sự hài hòa về thị giác, tối ưu công năng sử dụng và duy trì dòng năng lượng tích cực trong không gian sống.
Phòng khách
Nên được thiết kế với chiều cao trần nhà chuẩn phong thủy, dao động trong khoảng 3.6 – 5 mét, vừa tăng cảm giác thông thoáng vừa tôn lên vẻ sang trọng và vị thế trung tâm của ngôi nhà.
►► Tham khảo thêm: Những lưu ý, nguyên lý thiết kế phòng khách 2025 cần biết
.png)
Phòng thờ
Cần có chiều cao tương đương hoặc cao hơn các không gian khác để giữ sự trang nghiêm, đồng thời đáp ứng yêu cầu phong thủy về sự tôn kính và yên tĩnh cho khu vực tâm linh.
Phòng ngủ, bếp, phòng ăn, phòng làm việc
Chiều cao lý tưởng từ 3 – 3.3 mét giúp không gian ấm cúng, dễ chịu, hỗ trợ ổn định tinh thần và đảm bảo sinh hoạt hàng ngày thuận lợi.
►► Tham khảo thêm: Hướng dẫn cách bố trí phòng ngủ theo phong thủy
.png)
Phòng để xe, phòng vệ sinh, kho chứa
Nên bố trí chiều cao khoảng 2.4 – 2.7 mét, vừa đủ đáp ứng công năng sử dụng, đồng thời tiết kiệm chi phí thi công mà không ảnh hưởng đến tổng thể thiết kế.
Tầng lửng
Chiều cao phù hợp dao động trong khoảng 2.2 – 2.5 mét, góp phần duy trì khoảng cách tầng lầu theo phong thủy và tạo sự cân đối hình khối với tầng trệt.
Yếu tố cần lưu ý khi xác định chiều cao tầng nhà theo phong thủy
Khí hậu
Ở vùng nóng ẩm, chiều cao tầng nhà theo phong thủy nên từ 3.6–4.5m để tăng độ thông thoáng. Với khu vực ôn hòa, chiều cao trần nhà chuẩn phong thủy nên từ 3m trở lên để đảm bảo sự thoải mái và luân chuyển khí tốt.
Quy định pháp lý
Tầng 1 có thể được xây cao tối đa 3.8m, các tầng còn lại không nên vượt 3.4m nhằm giữ khoảng cách tầng lầu theo phong thủy hợp lý và đúng quy chuẩn xây dựng.
.png)
Phong thủy tổng thể
Chiều cao tầng nhà theo phong thủy cần hài hòa với diện tích và công năng, tránh quá thấp gây bí bách hoặc quá cao gây rối mắt. Các tầng trên nên giữ chiều cao trần nhà chuẩn phong thủy để duy trì sự cân đối. Lựa chọn đúng chiều cao tầng nhà theo phong thủy sẽ giúp không gian sống vượng khí, ổn định và hài hòa.
618 Architects – Kiến tạo không gian đồng bộ, nâng tầm bản sắc kiến trúc Đà Nẵng
618 luôn theo đuổi định hướng thiết kế lấy trải nghiệm người dùng làm trọng tâm, kết hợp khéo léo ngôn ngữ kiến trúc hiện đại với chiều sâu tinh thần trong từng công trình. Việc tích hợp phong thủy học ứng dụng vào thiết kế được thực hiện một cách linh hoạt, giúp nâng cao chất lượng sống, tối ưu hóa công năng và đảm bảo sự bền vững lâu dài.
Giải pháp toàn diện của 618 Architects cho không gian sống hiện đại
Với nền tảng kinh nghiệm vững chắc trong cả thiết kế nội thất lẫn tổng thầu thi công, 618 Architects luôn duy trì sự nhất quán từ ý tưởng ban đầu đến giai đoạn hiện thực hóa công trình. Chúng tôi cam kết kiến tạo những không gian hiệu quả, chỉn chu và mang tính nhận diện riêng, đóng góp vào sự phát triển và bản sắc kiến trúc của đô thị Đà Nẵng.
.png)
Liên hệ ngay với 618 Architects để được tư vấn chi tiết
Hy vọng thông qua bài viết trên, 618 Architects đã hỗ trợ các nhà đầu tư đưa ra quyết định phù hợp trong lựa chọn chiều cao tầng nhà theo phong thủy cho nhà cao tầng. Nếu bạn còn có bất kỳ thắc mắc nào liên quan đến thiết kế và thi công các công trình xây dựng thì đừng ngần ngại liên hệ ngay qua số hotline 08 77777 618 để được giải đáp chi tiết nhé!
Các câu hỏi thường gặp:
Công ty TNHH Kiến trúc 618 || 618 Architects
Kiến trúc & Nội thất | Architecture & Interior Design
Phát triển thiết kế & tối ưu khôi tích | Design Development & Masing
Thi công - Giám sát - Thẩm định | Construction - Supervision - Verification
=======================
“Thức tỉnh cuộc sống" trong từng công trình
Địa chỉ: 94 Duy Tân, Hoà Cường, Đà Nẵng
Xưởng SX: La Bông 3, Hòa Vang, Đà Nẵng
Website: www.618.vn
Email: contact@618.vn
Hotline tư vấn: 08 77777 618
Hỗ trợ Kỹ thuật: 08 17777 618
Tư vấn cấp phép: 08 57777 618
Văn phòng: 023 66 5555 66